top of page

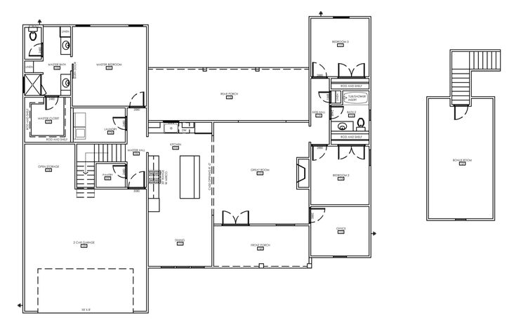
REEDY 1
FLOOR PLAN
STARTING AT $489,000
This beautifully designed 2,170-square-foot modern home offers 3 spacious bedrooms and 2 stylish bathrooms, thoughtfully crafted for comfort and functionality. Featuring a dedicated office space, a versatile bonus room, a convenient garage, and a welcoming covered porch, this home effortlessly blends contemporary living with everyday practicality—perfect for work, relaxation, and entertaining.
Craft Your Home Today!
Call (864) 380 - 1086
bottom of page


