top of page

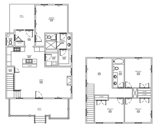
CAESARS HEAD
FLOOR PLAN
STARTING AT $380,000
Discover the perfect blend of comfort and sophistication in this beautifully designed 1,939-square-foot home, featuring 3 spacious bedrooms and 2.5 baths. Thoughtfully crafted for modern living, this residence boasts an airy open floor plan, a generous loft, and a main-level primary suite for added convenience. The spacious kitchen is ideal for both everyday living and entertaining, while the covered porch and expansive outdoor living areas invite you to relax or gather with family and friends. Offering a seamless balance of luxury, privacy, and endless design possibilities, this home is truly a place to make your own.
Craft Your Home Today!
Call (864) 380 - 1086
bottom of page


